Объявление №558038 Добавлено 04 Mar, 22:55 Обновлено 15 Mar, 12:20 52 просмотра

Продажа 4 комн. Омск. Бархатовой ул, 6В

4500 т. р. 72 231,14 р/м²
Объект
Квартира
Тип
Вторичное жилье
Материал
кирпичный
Район
Советский
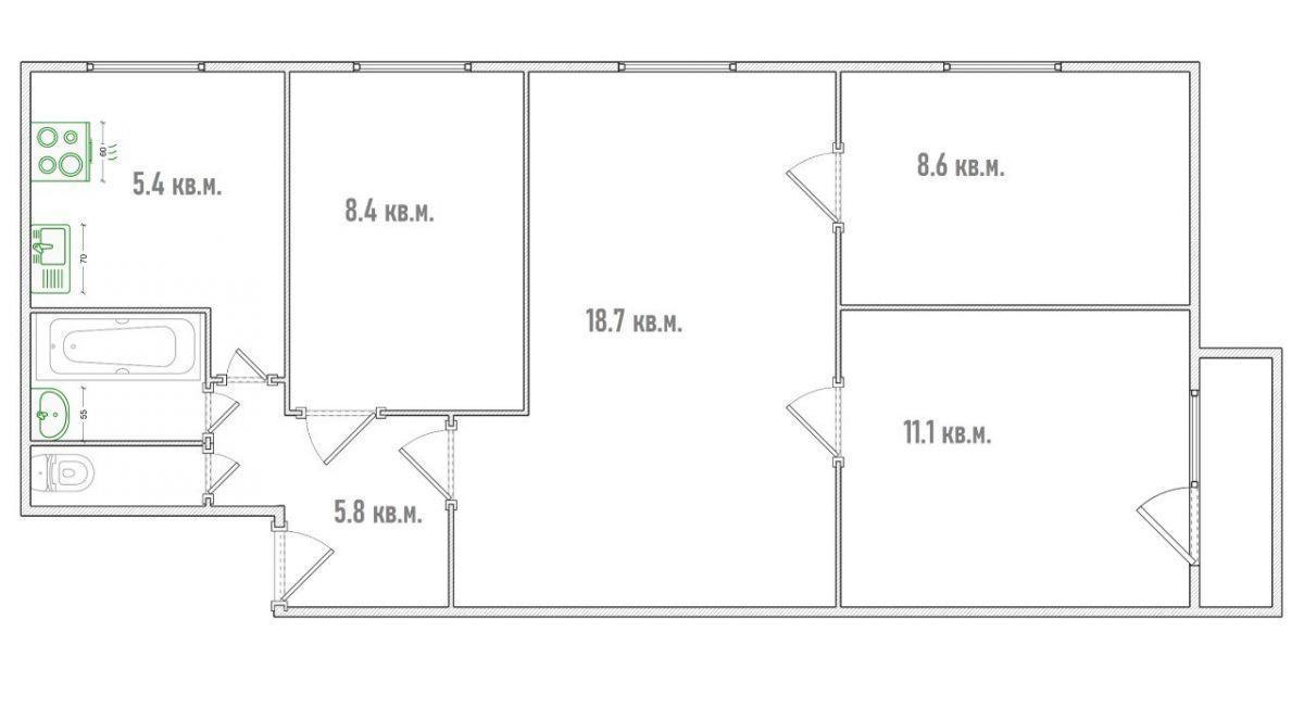
Площадь
62.3/38.4/5.4
Состояние объекта
стандартный ремонт
Этаж/всего этажей
5/5
Балконов/лоджий
1/-
Продавец:
Антонина
Телефон:
+7 (950) 338-05-05
Входит в состав Союза «Омская Гильдия риэлторов»
Входит в состав Российской Гильдии риэлторов
Сертифицированное агентство недвижимости

Центр недвижимости и ипотеки ТандемТ предлагает вашему вниманию 4х  комнатную квартиру на 5 этаже 5 этажного кирпичного дома .  Квартира светлая , теплая, хоть и угловая, сан узел раздельный, балкон ,счетчики, состояние жилое. Ухоженный двор, чиcтый  подъезд, дружные соседи , во дворе детская и хоккейная площадки. Инфраструктура отлично развита, рядом 2 школы , детские сады ,множество магазинов, аптеки, Первомайский рынок, Первомайский кинотеатр, Ледовая арена им. Родниной, гипермаркет Лента, торговый центр и фитнес-клуб, в шаговой доступности две остановки конечная им. В. Бархатовой и им. О. Охрименко, уехать можно в любую точку города. Один собственник. Документы готовы. Долгов нет. Чистая продажа. Звоните ! Вы хотите приобрести нашу квартиру, но еще не продана своя? Примем на реализацию вашу недвижимость. Гарантируем безопасное и комфортное сопровождение сделки. Центр ТандемТ обладает всеми необходимыми сертификатами и является членом Омского Союза риэлторов и Российской Гильдии риэлторов, что подтверждает высокий уровень профессионализма и качества предоставляемых услуг. ​​​​​​​Профессиональная ответственность АН застрахована на 5 млн рублей.Номер объекта: #5/537632/24613 Дополнительная информация: санузел - раздельный

Пожаловаться на объявление