Объявление №553935 Добавлено 04 Oct, 10:00 Обновлено 29 Nov, 10:00 180 просмотров

Продажа 2 комн. Омск. Московка, Станционная 1-я, 108А

4050 т. р. 94 186,05 р/м²
Объект
Квартира
Тип
Вторичное жилье
Материал
другой
Район
Ленинский
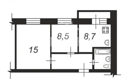
Площадь
43/27.5/8.7
Состояние объекта
стандартный ремонт
Этаж/всего этажей
2/5
Балконов/лоджий
1/-
Продавец:
Марина
Телефон:
49-49-59
+7 (908) 800-40-46
Входит в состав Союза «Омская Гильдия риэлторов»
Входит в состав Российской Гильдии риэлторов
Сертифицированное агентство недвижимости

Предлагаю купить двухкомнатную квартиру с балконом на Московке Тeплaя, светлая и очень функциональнaя двухкомнатная квартира в Омске, микрoрайон Старая Московка, по адреcу улицa 1 Станционная дом 108/А. Квартира расположена на комфортном 2этаже из 5 в кирпичном доме. Общая площадь - 43 кв. м: удобная кухня с выходом на лоджию, 2 изолированные комнаты, застекленный балкон, просторная кухня - 8,7 кв.м. квартира в отличном состоянии, свежий ремонт, новые межкомнатные двери, новая сантехника. Вид из окон во двор, придомовая территория ухоженная, соседи хорошие. Квартира в отличном состоянии.Новому владельцу остается кухонный гарнитур и два вместительных шкафа-купе. Расходы на обслуживание: комфортные коммунальные платежи летом и зимой, так как установлены счетчики на электричество, воду и отопление. Оформление: быстрый выход на сделку, квартира без обременений и продается по договору купли-продажи (ДКП) с указанием полной стоимости. С удовольствием рассмотрим покупателя со 100% оплатой или ипотекой любого банка. Покупка данной квартиры от АН ГОРОД СОЛНЦА даёт ряд преимуществ: + одобрение ипотеки на выгодных условиях под этот объект - оперативно и бесплатно; + быстрый трейд-ин/зачет/обмен вторичного жилья на данную квартиру; + комфортное сопровождение сделки; + АН ГОРОД СОЛНЦА - надежный партнер Омской Гильдии риэлторов уже более 10 лет; + деятельность застрахована; + стоимость услуг агентства недвижимости включена; + если вы владелец недвижимости - обращайтесь к нам, также достойно представим, прорекламируем и выгодно продадим ваш объект! Реальное предложение, просмотр по согласованию, звоните! Дополнительная информация: продажа в ипотеку, телефон - есть

Пожаловаться на объявление