Объявление №559499 Добавлено 23 Apr, 11:50 Обновлено 29 Apr, 12:00 37 просмотров

Продажа 2 комн. Омск. 2-я Барнаульская ул, 11А

3850 т. р. 84 801,76 р/м²
Объект
Квартира
Тип
Вторичное жилье
Материал
кирпичный
Район
Центральный
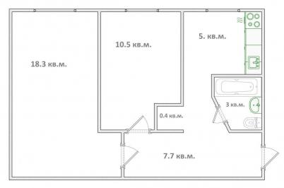
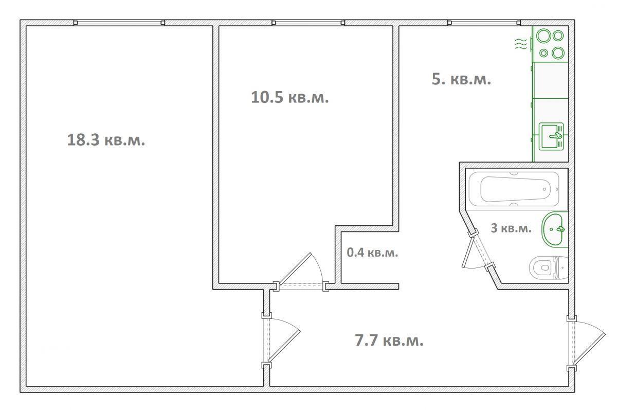
Площадь
45.4/28.8/5.5
Состояние объекта
неудовлетворительное
Этаж/всего этажей
1/5
Балконов/лоджий
-/-
Продавец:
Анна
Телефон:
+7 (950) 338-05-05
Входит в состав Союза «Омская Гильдия риэлторов»
Входит в состав Российской Гильдии риэлторов
Сертифицированное агентство недвижимости

Номер объекта: 537973. КВАРТИРА ПОД РЕМОНТ - ВСЕ ГРЯЗНЫЕ И ШУМНЫЕ РАБОТЫ УЖЕ ПОЗАДИ! Двухкомнатная квартира с изолированными комнатами в тихом районе Омска — без пыли, грязи и хлопот на старте ремонта. Вам не придётся заниматься демонтажем и черновой подготовкой: всё самое сложное уже сделано.  ​​​​​​​Что уже сделано: в санузле демонтирован старый кафель, вынесены старые коммуникации и ванна; по всей квартире выполнена свежая бетонная стяжка пола; натянут глянцевый потолок; установлены окна ПВХ. Ключевые преимущества: Близость зелёной зоны: всего 30 шагов от подъезда — и вы в сквере «Сад Сибирь» с ухоженными аллеями и детской площадкой. Удобная планировка: зал — 18,3 м2 (идеально для семейных вечеров и детских игр); изолированная спальня — 10,5 м2 (обеспечит спокойный сон ребёнку); три окна выходят во двор — в квартире всегда светло и тихо. Мало соседей на этаже: всего две квартиры, среди жильцов — преимущественно семейные люди. Технические характеристики: тип дома: кирпичный, 1977 года постройки (хорошая звукоизоляция, комфортный микроклимат — тепло зимой и прохладно летом); этаж: первый из пяти (сухой подвал, в подъездах нет посторонних запахов). Инфраструктура в шаговой доступности: Почта и ПВЗ Wildberries и Авито — прямо в доме; магазины «Магнит», «Озон», «К&Б» — в соседних домах; студия красоты — в соседних домах. Расстояние до социальных объектов и транспорта: детский сад № 305 — 15 минут пешком; поликлиника и стационар МСЧ № 11 — 5 минут пешком; гуманитарный колледж и академия — 5 минут пешком; гимназия № 159 — 30 минут пешком (1 км); остановки общественного транспорта (ул. Челюскинцев и 22‑Партсъезда) — 10–15 минут пешком. Условия сделки: Возможна ипотека, в том числе военная.Работаем со всеми сертификатамиГарантируем безопасное и комфортное сопровождение сделкиПрофессиональной ответственность агентства застрахована✨ Предложение для будущих владельцев: если вы хотите приобрести эту квартиру, но ваш объект еще не продан, мы готовы принять вашу недвижимость на реализацию. Комментарий эксперта: Меня зовут Анна Шатеева — специалист Центра недвижимости и ипотеки ТандемТ. Я курирую продажу этого эксклюзивного объекта. Свяжитесь со мной для получения расширенной презентации, дополнительных фотографий или для организации просмотра. Я также с удовольствием проведу для вас экскурсию по локации и детально познакомлю с этой прекрасной квартирой. Дополнительная информация: комнаты раздельные, санузел - совмещенный

Пожаловаться на объявление