Объявление №553822 Добавлено 30 Sep, 14:49 Обновлено 14 Nov, 12:11 40 просмотров

Продажа 1 комн. Омск. Красный Пахарь, 2к1

6370 т. р. 167 631,58 р/м²
Объект
Квартира
Тип
Срок сдачи
2 квартал 2026 года
Материал
монолитный
Район
Центральный
Площадь
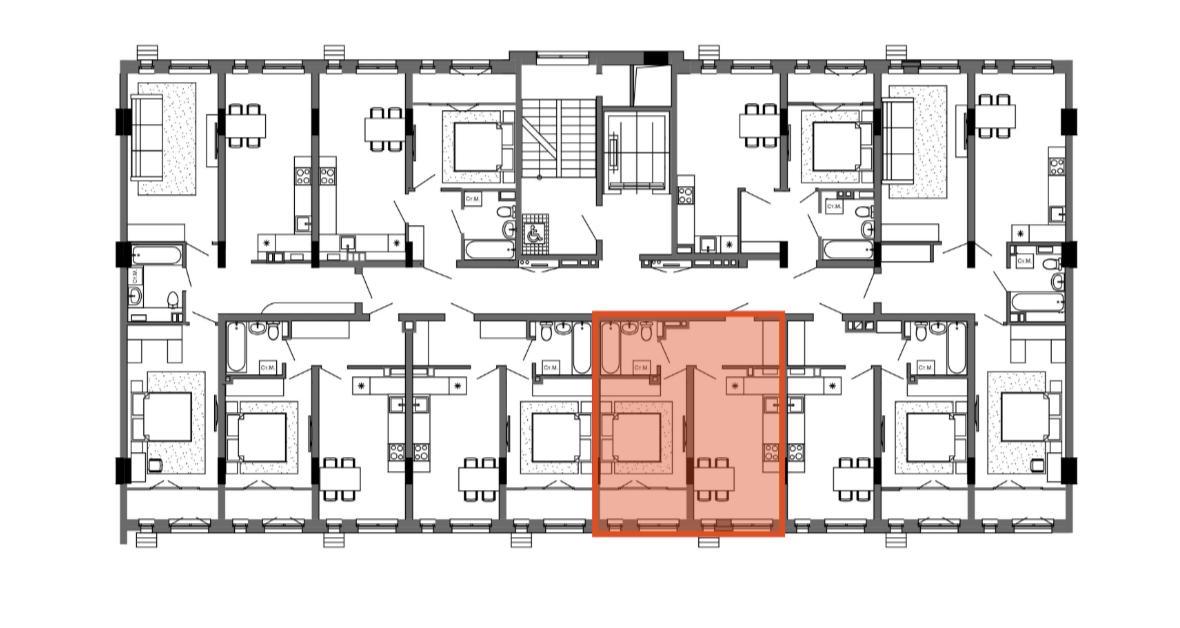
38/11/15
Состояние объекта
высококачественная отделка
Этаж/всего этажей
6/8
Балконов/лоджий
1/-
Продавец:
ООО Компания "Омская недвижимость"
Телефон:
+7 (903) 927-05-35

Продаётся 1-комнатная квартира в строящемся доме (Дом 1), срок сдачи: II-кв. 2026, общей площадью 37.47 кв.м., на 6 этаже. Новый жилой дом от Специализированного застройщика "Полат" расположен в г. Омск на пересечении улиц Красный Пахарь и 17-й Военный Городок.

 О жилом комплексе Красный Пахарь

Новый монолитно-кирпичный дом находится в Центральном районе Омска. 

Новостройка располагается в границах улиц 5-я Северная, Красный Пахарь и Военный 17й городок.

 В доме есть кладовые на -1 уровне, и дополнительные помещения для хранения инвентаря на 1 и 2 этажах.

Новый 8-этажный дом на пересечении улиц Городок Военный 17-й и Красный Пахарь состоит из трёх подъездов. 

Всего в новостройке 140 квартир площадью от 33 до 86 кв.м.

 Преимущества ЖК по ул. Военный 17й городок/Красный Пахарь:

 - монолитно-кирпичная новостройка;

 - кладовые в цоколе;

- спортивные и детские площадки во дворе; 

- есть пандус и понижающие площадки; 

- предчистовая отделка квартир; 

- остановка общественного транспорта через дорогу от дома.

Пожаловаться на объявление