Объявление №558491 Добавлено 17 Mar, 13:25 Обновлено 26 Mar, 12:20 19 просмотров

Аренда ул. Причальная, 2, корп. 19

250 р. в месяц 0,33 р. /м²
Объект
Коммерческая недвижимость
Район
ул. Причальная, 2, корп. 19
Площадь
750
Этаж/всего этажей
1/1
Срок оплаты
не указано
Телефон
не указано
Интернет
не указано
Срок сдачи
не указано
Продавец:
Сергей
Телефон:
+7 (901) 618-50-00

Аренда помещения под любое производство/склад от собственника!
Помещение может использоваться под любой вид деятельности, пищевое производство, деревообработка, металлообработка, склад, мебельное производство, сборочное производство, фасовка.
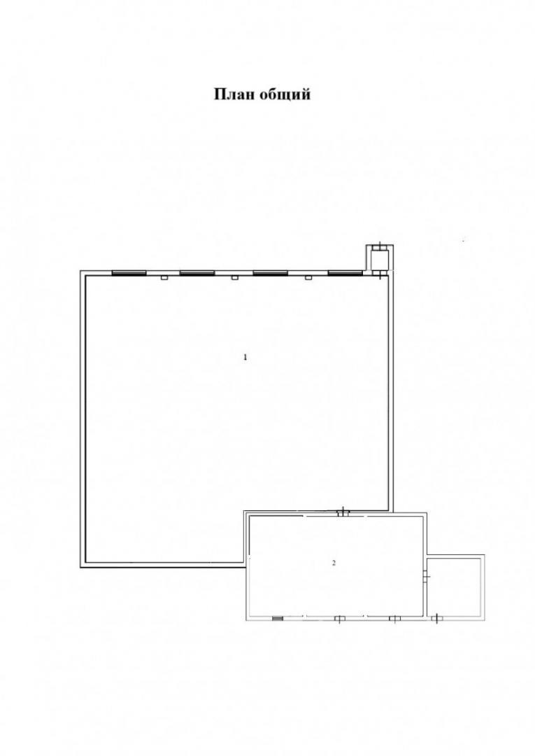
Площадь комплекса 1 200 квадратных метров на участке 1 059 квадратных метров.
Состоит из двух отдельных соединённых между собой зданий.
Поэтому рассматриваем как аренду целиком, так и по отдельности:
1 200 м², 750 м² и 450 м²
Основные характеристики:
Общая площадь территории составляет 8 905 м²
Производственные-складские помещения занимают 1 064 м²
Офисные площади и места общего пользования составляют 236 м²
Помещение подготовлено для организации пищевого производства полного цикла. Соблюдены принципы поточного производства, соответствует действующим требованиям ГОСТа, СанПина и требованиям пожарной безопасности
Отделка:
Цеха – кафель, индустриальная напольная плитка, подогреваемые полы
Офисы – современная стандартная
Помещение полностью оснащено оборудованием для производства мясных полуфабрикатов и рассчитано на выпуск готовой продукции до 200 тонн в месяц
Стоимость оборудования обсуждается отдельно (в случае, если оно заинтересует нового собственника) и не входит в основную цену
В помещении расположена газовая котельная
Итого: 1 200 м² плoщaдей для paзвития бизнecа

Имеется газ, центральная канализация, подача воды и электричество мощностью 150 кВт
Высота потолков в производственных цехах — от 3.0 до 6.0 метров
Созданы идеальные условия для приёма, хранения, обработки и подготовки сырья, изготовления, фасовки, хранения и отгрузки готовой продукции
Погрузочные и разгрузочные ворота
Место для отстоя и маневрирования длинномерной техники
Участок освещен и охраняется.
Имеется пропускной режим.
Аренда комплекса
1 200 м² - 299 999 Р/месяц
750 м² - 187 500 Р/месяц
450 м² - 112 500 Р/месяц
Дополнительные платежи - коммунальные расходы.

Пожаловаться на объявление

Похожие объекты