Объявление №557229 Добавлено 12 Feb, 15:18 Обновлено 23 Apr, 16:50 62 просмотра

Аренда Омск. улица Воровского 116к1

556920 р. в месяц 420,00 р. /м²
Объект
Коммерческая недвижимость
Район
Кировский
Ориентир
Выезд на федеральную трассу Омск-Новосибирск.
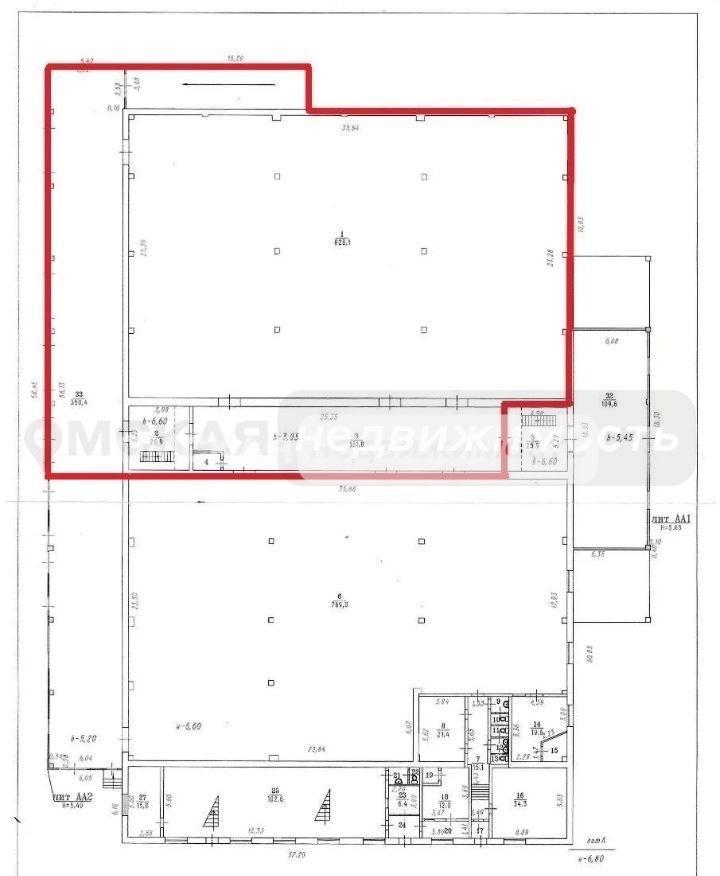
Площадь
1326
Этаж/всего этажей
1/1
Назначение
склад
Срок оплаты
месяц
Телефон
нет
Интернет
нет
Срок сдачи
длительный
Продавец:
ООО Компания "Омская недвижимость"
Телефон:
+7 (913) 634-11-77

​Аренда складского комплекса в Омске.

Удобная локация.

Выгодные условия! Отличное техническое состояние!

Правый берег Иртыша. Ленинский АО. Выезд на федеральную трассу Омск-Новосибирск.

Преимущества:

 -  Локация. Удобные подъездные пути, выезд на федеральную трассу.

 - Техническое состояние. Теплый сухой склад с широким закрытым дебаркадером и большим количеством ворот.

 -  Наличие Мезонина (стеллаж). При необходимости в эффективном использовании всего объема (высота 6,6 м) при складировании, готовы предоставить мезонин для данного склада.

ХАРАКТЕРИСТИКА ПОМЕЩЕНИЯ:

Отопление: автономное, газовое.
Электроэнергия: 70кВт (можно увеличить)
Водоснабжение и канализация: имеется
Высота потолка: 6,6 метров.
Погрузочно-разгрузочная зона: имеется. Широкий закрытый деборкадер (пандус) ( ширина 5,2 м, длина 25 м). Количество ворот - 4.
Полы: бетонный, беспылевой (дефектов не имеет)
Расположение: Первая линия. Асфальтированные подъездные пути. Оборудованная парковка.
Подъездные пути: Асфальтированные/жб плиты/грунтовые.
Доступ к трудовым ресурсам: высокий (остановка ОТ в 300 метрах от объекта).

Имеются офисные помещения на первом и антресольном этажах.

Прямая аренда от собственника. Без комиссии агентства. 

Пожаловаться на объявление