Объявление №552991 Добавлено 01 Sep, 14:29 Обновлено 09 Dec, 11:30 61 просмотр

Аренда Омск. проспект Карла Маркса 87

100000 р. в месяц 751,88 р. /м²
Объект
Коммерческая недвижимость
Район
Ленинский
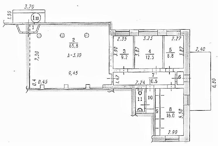
Площадь
133
Этаж/всего этажей
1/5
Назначение
офис, торговля, прочие услуги, свободного назначения
Дополнительно
отдельный вход
Срок оплаты
месяц
Телефон
нет
Интернет
нет
Срок сдачи
длительный
Продавец:
ООО Компания "Омская недвижимость"
Телефон:
51-10-51
+7 (913) 634-11-77

Одна из главных магистралей Омска!Идеально для Стрит ритейла (Торговли, Услуг, ПВЗ, отделения банка/страховой компании).Пpocпeкт Кaрлa Мapксa. Сформированный торговый ряд и близость к остановке общественного транспорта, обеспечивают высокий пешеходный трафик. Идеально для ведения любой коммерческой деятельности.

К основным преимуществам данного предложения можно отнести:

 -  Высокий автомобильный и пешеходный трафик. Первая линия.

 -  Нежилое помещение общей площадью 133 кв.м.

 -  Удобная планировка. Высокие потолки. Запасной вход/выход (Зона разгрузки). Возможность деления помещения.

 -  Широкий фасад ориентированный на проспект Карла Маркса. Место под рекламную вывеску.

 -  Входная группа и фасад расположены в месте скопления пешеходов на остановке общественного транспорта.

 - Сформированный торговый ряд. Арендаторы крупные сетевые федеральные и региональные компании (Ярче, Красное и белое, Апрель, Россельхозбанк, Почта России).

 -  Цена указана с НДС

Прямая аренда от собственника! 

Без комиссии агентства! 

Гибкий подход к запросам претендентов! 

Пожаловаться на объявление