Объявление №553403 Добавлено 16 Sep, 10:50 Обновлено 18 Dec, 11:00 28 просмотров

Продажа Омск. 2-я Путевая улица

8500 т. р. 69 105,69 р/м²
Объект
Дом
Тип объекта
Дом
Район
Ленинский
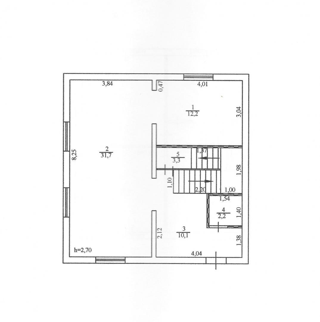
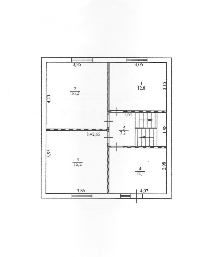
Площадь
123/-/-
Площадь участка
-
Этажность
не указано
Количество спален
не указано
Тип отопления
газовое
Материал
другой
Состояние объекта
готов
Продавец:
Sergey
Телефон:
+7 (903) 927-75-00

Наше предложение для тех, кто давно мечтает жить в своём доме, где царит атмосфера умиротворённости, покоя и чистоты; для тех, кто заботясь о своём здоровье и о здоровье своей семьи, предпочитает натуральные продукты, покупным. Для этих целей имеется земельный участок площадью 4 сотки, а так-же погреб для хранения выращенного урожая и домашних заготовок. Пространство внутри дома грамотно распределено, что позволило создать просторную прихожую, уютную гостиную , обустроить функциональную кухню, три спальни, веранду, два санузла и гараж. А благодаря проведённым коммуникациям (газ, центральный водопровод, канализация-септик, электричество)- вы не почувствуете разницы с проживанием в благоустроенной квартире. Тишину и спокойствие, чистейший воздух обеспечивают берёзовая роща и зелёное поле, а так же минимум соседей. В то же время, хочется отметить, наличие развитой инфраструктуры в пешей доступности. Все это и многое другое, можно найти в нашем доме. Приезжайте на просмотр, не пожалеете. PS. Большая часть мебели и техники, останется новым владельцам.

Пожаловаться на объявление