Объявление №549563 Добавлено 02 Jun, 13:17 Обновлено 19 Apr, 11:30 240 просмотров

Продажа Омский. Усть-Заостровка. Песочная ул., 1

7150 т. р. 9 432,72 р/м²
Объект
Дом
Тип объекта
Дом
Район
Песочная ул., 1
Площадь
758/758/50
Площадь участка
-
Этажность
3
Количество спален
не указано
Тип отопления
газовое
Материал
кирпичный
Состояние объекта
готов
Продавец:
Михаил Чернов
Телефон:
+7 (913) 651-66-30
Входит в состав Союза «Омская Гильдия риэлторов»
Входит в состав Российской Гильдии риэлторов
Сертифицированное агентство недвижимости

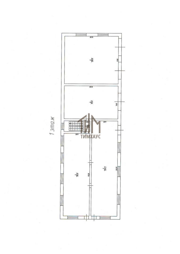
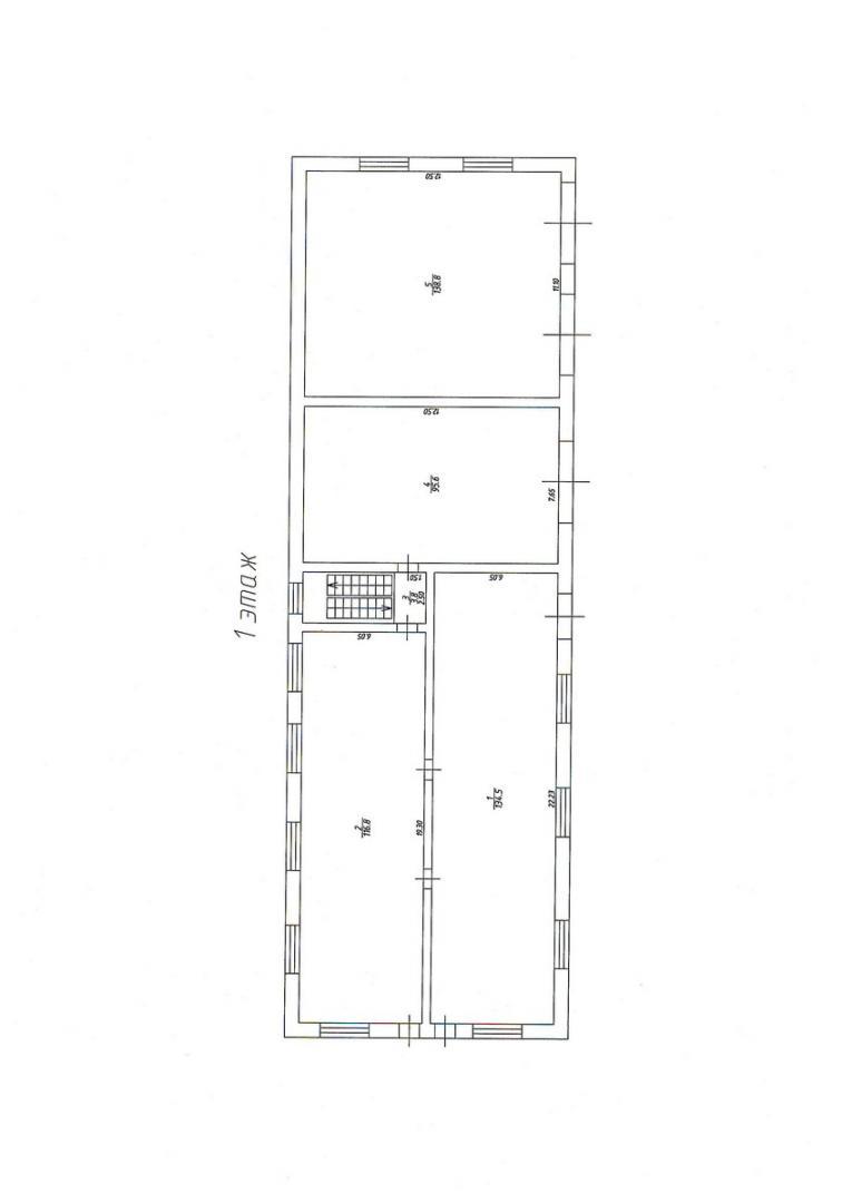
Предлагаем вашему вниманию отличный вариант по привлекательной цене: уникальный, большой дом в живописном и экологически чистом месте Омской области, с. Усть-Заостровка, находящийся на ПЕРВОЙ БЕРЕГОВОЙ ЛИНИИ. Дом полностью кирпичный (наружные стены в 2,5 кирпича утеплены двойным слоем пеноплекса и отделаны природным камнем по всему фасаду). Общая площадь составляет 1245 м2, в которую входит цокольный этаж, два жилых этажа, а также два гаража. Цокольный этаж площадью 250 м2, 1-ый этаж включает в себя два жилых помещения : первое 117 м2, второе 134 м2, и 235 м2 - площадь гаражей, предназначенных для размещения как водного, так и наземного транспорта, 2-ой этаж - 507 м2 с шикарным панорамным видом на Иртыш. Дом расположен на земельном участке правильной формы площадью 25 соток, в собственности. По документам назначение жилое, имеется возможность без труда перевести в нежилое, под гостиницу или отель. Географическое расположение земельного участка позволяет иметь индивидуальный выход к реке и собственный пляж!!! Себестоимость строительства многократно превышает заявленную стоимость. Для удобства поиска по карте: кадастровый номер участка: 55:20:230101:3908. Рассмотрим варианты обмена. Звоните в любое по любым вопросам!!!

Пожаловаться на объявление