Объявление №555699 Добавлено 08 Dec, 13:00 Обновлено 15 Dec, 13:00 12 просмотров

Продажа Омск. Глухой пер., 9

15850 т. р. 103 459,53 р/м²
Объект
Дом
Тип объекта
Дом
Район
Кировский
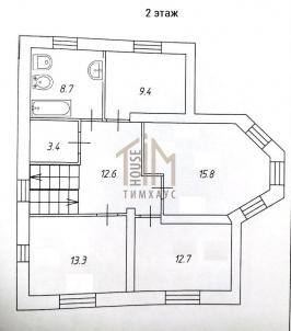
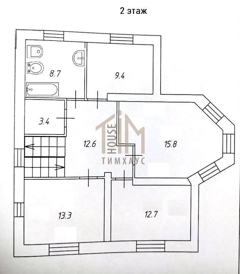
Площадь
153.2/82/16.2
Площадь участка
-
Этажность
2
Количество спален
не указано
Тип отопления
газовое
Материал
кирпичный
Состояние объекта
готов
Продавец:
Надежда Онучина
Телефон:
+7 (913) 972-16-54
Входит в состав Союза «Омская Гильдия риэлторов»
Входит в состав Российской Гильдии риэлторов
Сертифицированное агентство недвижимости

Добро пожаловать в современный коттедж! АН «ТимХаус» предлагает уникальную возможность приобрести стильный и уютный дом, который идеально подойдет для семьи. Построенный в 2015 году он готов встретить своих новых владельцев, остается мебель и бытовая техника. В доме расположены четыре спальни, светлая кухня площадью 16.2 кв. м, которая станет центром притяжения для всей семьи, и просторная гостиная для отдыха и встреч с друзьями. В доме два санузла, бойлерная, гардеробная. На первом этаже теплый пол. Высокие потолки добавляют простора. Локация этого уникального предложения — еще один безусловный плюс. Все необходимые элементы инфраструктуры находятся в шаговой доступности: средняя школа №97 и детский сад №329, супермаркеты и предприятия сферы услуг,Кировский пляж «Пиратский Остров». Отличная транспортная доступность позволит быстро добраться в любую точку города. Мы можем выкупить вашу недвижимость в счет оплаты за новую по системе trade-in. Не упустите шанс стать владельцем этого замечательного коттеджа! Звоните по любым вопросам, и наши специалисты с радостью помогут вам.

Пожаловаться на объявление