Объявление №555917 Добавлено 17 Dec, 09:51 Обновлено 17 Dec, 09:51 0 просмотров

Продажа улица Степная, 33

7200 т. р. 52 554,74 р/м²
Объект
Дом
Тип объекта
Дом
Район
улица Степная, 33
Площадь
137/-/-
Площадь участка
-
Этажность
2
Количество спален
не указано
Тип отопления
газовое
Материал
другой
Состояние объекта
готов
Продавец:
Башмакова Наталия Викторовна
Телефон:
+7 (962) 055-32-99
Входит в состав Союза «Омская Гильдия риэлторов»
Входит в состав Российской Гильдии риэлторов

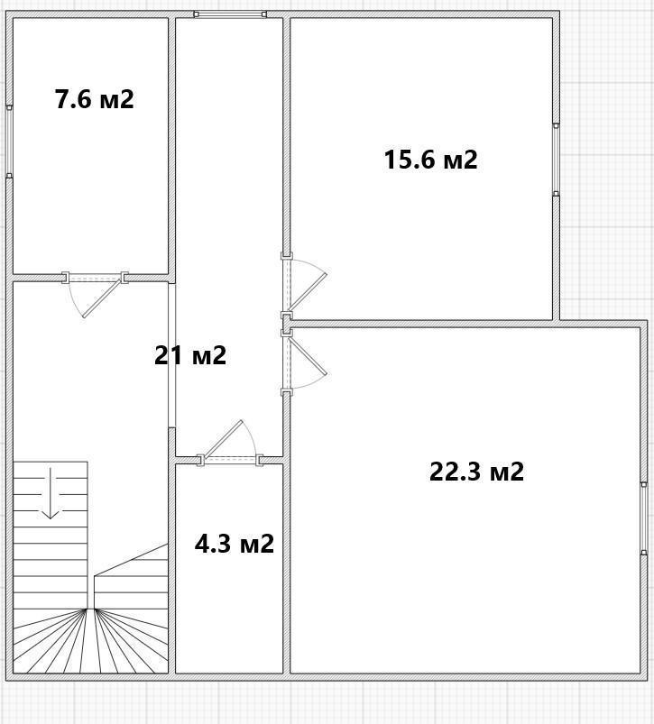
Предлагаем к продаже прекрасную усадьбу в экологически чистом месте - двухэтажный дом площадью 137 кв.м в с. Сосновка Азовского района (30 км от Омска). Дом очень светлый и теплый, спроектирован и построен в 2009 году и расположен на земельном участке 7.55 соток. Перед домом дополнительно ухоженная территория с посадками 8 соток. На данном участке расположены дом, баня 31,2 кв.м с новой сауной и душевой, гараж 41,5 кв.м с погребом 2*2,5 м.,стены выложены кирпичом, котельная 7 кв.м, с отдельным входом, беседка, хоз. постройки. Дом построен на ленточном фундаменте, стены и перегородки дома из газоблока, утеплитель в 2 слоя, крыша из профнастила (с чердачным этажом). - дом газифицирован. - вода центральная, - септик 3,0 куба. - теплые полы в ванной комнате и коридоре от эл/энергии. - отделка стен и потолков (высота 3 м) - штукатурка. - перекрытия деревянные. Первый этаж дома площадью 65,2 кв.м состоит из гостиной-кухни 39,1 кв.м, прихожей, ванной с с/узлом, коридора, щитовой и кладовой комнат. Второй этаж дома площадью 71,9 кв.м состоит из 3-х изолированных комнат 23,3 кв.м, 15,6 кв.м и 7,6 кв.м, прихожей 21 кв.м, гардеробной комнаты. На полу качественный линолеум и кафельная плитка. Ванная комната выложена кафельной плиткой. На второй этаж ведет добротная деревянная лестница. В кухне расположен качественный встроенный кухонный гарнитур. Для новых собственников можем оставить всю мебель по договоренности. Перед входом в дом располагается деревянная терраса. Все дорожки выложены тротуарной плиткой. Участок разделен на три зоны; сад с плодоносящими деревьями и кустарниками, огород с теплицей и зона отдыха с мангальной зоной, верандой, качелями. Со всех сторон участка высокий забор из профнастила. Своя крытая автостоянка за участком. Перед участком находится большая ухоженная зона для отдыха с посадками из хвойных и плодовых деревьев. Проезд до дома по асфальтированной дороге, 20 км.от города. От ЖД Вокзала прямой автобус до самого дома. Вся инфраструктура: школа, детский сад, мед пункт, продуктовые и хоз. магазины. Реальным покупателям - разумный торг. Чистая продажа. Один взрослый собственник. Без долгов и обременений. Продажа в связи с переездом в другой город. Документы прошли юридическую проверку. Дом подходит под ипотеку и все виды жилищных сертификатов. Звоните, покажем в удобное для Вас время!

Пожаловаться на объявление