Объявление №555167 Добавлено 21 Nov, 09:52 Обновлено 31 Dec, 09:50 55 просмотров

Продажа Омск. Омск, Ольховая улица

6290 т. р. 96 769,23 р/м²
Объект
Дом
Тип объекта
Дом
Район
Ленинский
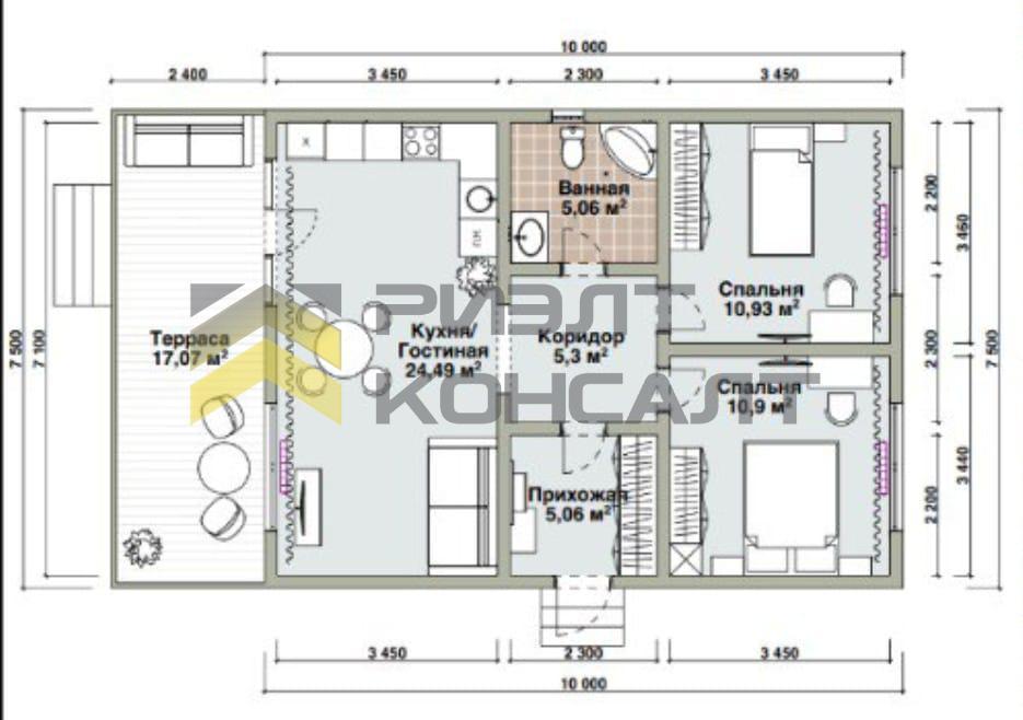
Площадь
65/-/-
Площадь участка
-
Этажность
1
Количество спален
не указано
Тип отопления
газовое
Материал
другой
Состояние объекта
готов
Продавец:
Иванова Людмила Александровна
Телефон:
+7 (906) 918-35-76
Входит в состав Союза «Омская Гильдия риэлторов»
Входит в состав Российской Гильдии риэлторов

Предлагаем к продаже дом Семейная ипотека 6%. Дом каркасный. Коробка 7*12. Построен на свайном фундаменте, благодаря чему устойчив к пучению грунта. Утеплитель мин.вата 200 мм по кругу. Перекрытия из бруса. Террасная доска - сосна. Внутри сделана предчистовая отделка: перегородки, разводка электричества, теплый пол. Заведены все необходимые коммуникации: водопровод, септик, электричество. В конструкции продумано все до мелочей! Возможна отделка под ключ! Очень хорошее место. Рядом есть вся инфраструктура: школа, сад, магазин. Регулярный автобус. Помощь в оформлении без первоначального взноса. Законно. Все вопросы по телефону.

Пожаловаться на объявление